Floor plan of Gulden Hoofd

Lower floor front
The rooms on the top floors and in the attics numbered in the same order as in the inventory of notary Joris Geesteranus.
1 - Stoop (stoep)
2 - Front room (voorhuijs)
3 - Inner room (binnenkamer)
4 - Back room (achterkamer)
5 - Hallway (gang)
13 - Landing and cellar (kelder)
From the stoop (#1), the entrance to the house was in the center with a window to each side. On the back wall of the front room (#2) were a door to the hallway (#5) and a door to the inner room (#3). The hallway had a landing for the stairs. Both the hallway and the inner room had doors leading to the back room (#4), which had a window looking onto the courtyard. In the corner, a door led to the gallery (see Lower floor back).

Lower floor back
6 Gallery (galerij)
7 Front kitchen (voorste keuken)
8 Back kitchen (achterkeuken)
9 Cupboard (pottebank)
10 Small courtyard (kleine plaestje)
11 Front courtyard (voorste plaats)
12 Back house (achterhuis)
The back part of the lower floor had a courtyard (#11) separating the main house from the kitchen (#7) and backhouse and toilet (#12). Running along the southern wall was a gallery (#6), a covered hallway. For the first fifty years that Leeuwenhoek lived in the Gulden Hoofd, the back wall of the kitchen and back house was the end of his property.
In 1708, Leeuwenhoek and Carl Serval bought and divided the house on the Nieuwstraat that shared a wall with the kitchen of the Gulden Hoofd. Leeuwenhoek took the back portion, which was already a kitchen (#8) and had a small courtyard (#10). He made a doorway between the two kitchens (#7 and #8).
The wall the kitchen shared with Carl Serval's portion was closed off. The door that had been there was replaced by either the stairwell to the upper floor or what the inventory called a cupboard for pottery (pottebank). The staircase that must have gone from the old kitchen to the attic and servants' quarters above was not present in 1745, so it must have been dismantled and perhaps used for the new staircase (#8). It would have given access to both upstairs rooms (see Top floor), so Leeuwenhoek must have put a doorway on the upper floor between his new back room and his old back attic.
Upper floor

The rooms on the top floors and in the attics numbered in the same order as in the nventory of notary Joris Geesteranus.
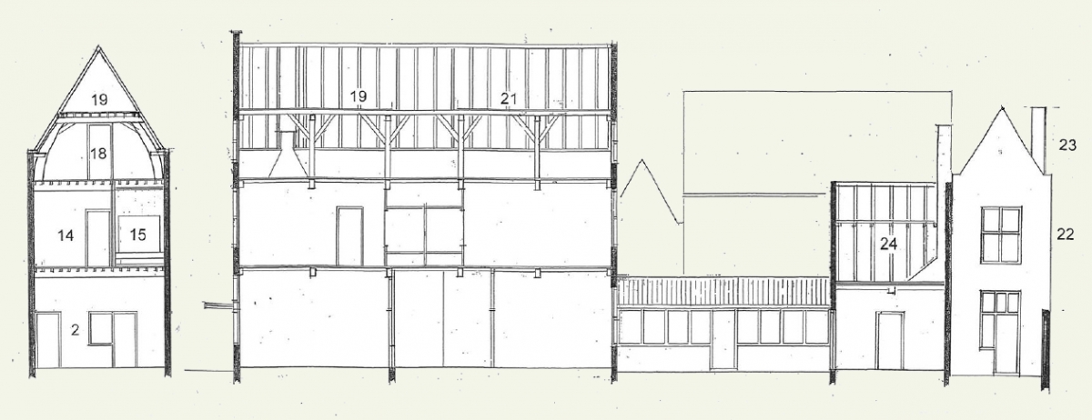
14 Front room
15 Office/Laboratory
16 Landing
17 Back room
This drawing shows two roofs: on the far left, the ledge (luifel) over the stoop; on the far right, the beginning of the roof of the gallery.
The upper floor of this house (called the first floor in Europe, the second floor in the U.S.) had a front room (#14) full of paintings. It was Leeuwenhoek's bedroom. His narrow office/study/laboratory (#15) was partitioned off from it in the northeast corner of the house. It had a window at looking onto the Hippolytusbuurt and a built-in bed at other end.
At the top of the stairs was a landing (#16). The large back room (#17) was also used as a bedroom and sitting room, probably by Maria, at least after her father's death. It had three built-in beds.














