Household goods, room by room

The cross-section of the Gulden Hoofd above left shows the front of the house along the Hippolytusbuurt, which flowed from the northwest to the southeast, say 11 to 5 on a clock face. That would be from left to right in front of the house as you face the water.
The cross-section above right looks at the property from upstream, that is, from north to south. The Hippolytusbuurt is on the left; the Nieuwstraat is behind.
The main house had three levels, here called lower, upper, and top; the attics are numbered 19 and 21. Moving towards the right, next comes the low gallery that has a courtyard in front of it. To the right of that, the structure numbered 24 is the kitchen and servants' loft of the house as Leeuwenhoek bought it. This section on the far right, numbered 22, is the property that Leeuwenhoek and Carl Serval bought and divided in 1708. Leeuwenhoek had only 15 more years to live, but his daughter Maria would enjoy the larger space for the last four decades of her life.
Below is a screenshot from Google Earth showing the property today. In the early 1800's, the Gulden Hoofd was bought by the owner of the Suikerhuis, next door on the corner. He combined the two, so they now share the orange roof on the left running vertically. The Suikerhuis was wider than the Gulden Hoofd.

In front of the house, trees line the Hippolytusbuurt, flowing up in this picture under the Warmoesbrug in the top left corner where the trees stop. The Nieuwstraat runs across the top of the picture. In Leeuwenhoek's time, the Nieuwstraat was also a gracht between the Nieuwe Delft on the left and the Oude Delft on the right.
In the center of the picture is a horizontal series of glass panels. They are where the Gulden Hoofd's gallery (#6) connected the main house to the kitchen, which would have been the lightly higher black roof to the right of the gallery. The black area in front of the glass panels was the Gulden Hoofd's larger courtyard (#11) in front of the gallery.
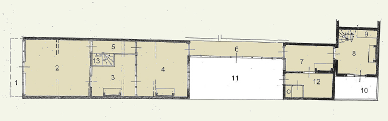
Lower floor
|
|
||
|
Approximate dimensions, walls included, from the Kaadaster of 1832: 1655 purchase 1708 addition total (excluding the two courtyards and the stairwell) |
1 Stoop with overhang (stoep met luifel) 2 Front room (voorhuijs) 3 Inner room (binnenkamer) 4 Back room (achterkamer) 5 Hallway (gang) 6 Gallery (gelderije) 7 Front kitchen (voorste keuken) 8 Back kitchen (achterkeuken) 9 (pottebank) 10 Little courtyard (kleine plaestje) 11 Front courtyard (voorste plaats) 12 Back house (achterhuis) 13 Landing to Cellar (kelder) |
|
Upper floor
|
14 Front room (voorkamer) 15 Office/Laboratory (comtoirtje) 16 Landing (portaaltje) 17 Back room (achterkamer) |
|



















